监狱怎么画图搭配什么阵容(监狱怎么画)

作者:TokyoRed
首发知乎:https://zhuanlan.zhihu.com/p/474365383
本文编译自《The Level Design Book》中《Layout》章节。主要聚焦于:如何绘制自上而下的包含流线、平衡、遭遇战和类型学的关卡平面图。介绍了受到建筑学启发的关卡平面布局设计方法论,并结合了经典游戏的关卡设计案例加以说明。
为什么要设计平面布局?
布局(layout)在关卡设计中有两个相似的含义:
关卡的整体结构。比如:”这个布局太混乱了,我不知道该往哪里走。”用于规划的总览图纸,有时被称为“topdown”的,因为它是从自上而下的角度绘制的。比如:“布局图画好了吗? 我们需要尽快白模测试。”
布局图可以是简单的,也可以是复杂的;可以是象征性的,也可以是具体化的;可以是抽象的,也可以是形象的。它可以是一张潦草的餐巾纸,也可以是一张详细的平面图,这要视情况而论。
简而言之,一个“好的布局图”可以指代任何能有效传达核心设计理念的图像。

哪一种布局草图的风格对你最有效? 你必须做出决定
概括来说,布局图是:
重要的合作尤其适用于多人游戏关卡游戏行业里,关卡设计师最基本的技能和工作任务之一
平面布局的概念
在设计平面布局时,利用以下设计理念:
流线(Flow)是玩家在关卡中移动时的感觉。
玩家移动的速度是快还是慢,是平稳还是突然?理想的流线取决于体验目标。意外的流线并不一定是坏事。
概念图(Parti)是布局的核心结构/主要思想。
将整个布局绑定在一起的整体概念是什么?清晰的部分可以帮助你专注于设计中最重要的部分。
类型学(Typology)是关于识别常见的布局模式和功能。
简化你思考布局的方式。共享设计词汇可以帮助你学习其他关卡和交流。

如何设计平面布局
这里详细列出了一个完整的布局过程,作为一个传统最佳实践的例子。如果你在设计布局时遇到了困难,尝试每一步,看看哪一步适合你。
但设计平面布局并没有最佳的方法。每个人(或项目)都可以用不同的方式进行布局。
前期制作: 定义设计目标概念图: 头脑风暴出一些核心形状气泡图: 可视化流程和空间关系平面图: 更详细的具体房间形状草图玩法标记: 添加标签和设计笔记
对于小型的个人项目,如果你感觉良好,你可以中途停止。对于大型的团队项目,你应该尝试在一块共享的白板上完成所有的步骤。

绘图迭代,从抽象网格(左)到平面图(右),《Architectural Graphics》,Francis Ching
1. 前期制作计划
设计没有任何目标的东西是很困难的。在前期制作阶段,我们尝试着在制作之前定义并计划我们想要做什么。所以在绘制布局之前,至少要确定一个玩家体验目标——在这个关卡中,玩家应该学习、感受或做什么?
你可以写下特定的体验目标(如“教玩家如何在科幻下水道中进行5分钟的双重跳跃”),也可以写得更抽象一些(如“与自然融为一体”)。但是,更具体=更容易设计。

Naughty Dog的《The Last Of Us》(2012)
有了玩家体验目标,你就可以计划节奏,特定事件和活动的顺序,帮助实现体验目标。
例如,如果你的体验目标是“逃离可怕的怪物”,那么你就需要将这种体验分解成更小的特定节奏——如:
听到门后婴儿的哭声揭示发出婴儿哭声的僵尸熊跳出窗户逃离怪物
这个简单的计划已经很有用了,现在我们知道关卡至少需要一扇门和一扇窗。
2. 概念图 Parti thumbnails
在建筑学中,概念图是整个建筑的基本形状/理念,包括:
一个简单的图表(缩略图)用简短的短语标记它
这一环节需要回答:什么类型的基本形状适合你的体验目标或节奏。
这个部分可以是象征性的(“倒置的船”),也可以是抽象化的(“消减的盒子”),或者它可以专注于人们将如何使用建筑(“核心区域公共-私密分离”),或者与周围环境的关系(“戳进树林的手指”)。
或者你可以用一些形状来尝试,然后再进行梳理。关键是要在没有压力的环境下进行视觉化思考。如果你不喜欢一个概念,没问题,你可以随便再写一个。

来自Matthew Frederic,《我在建筑学院学到的101件事》
对概念图的建议:
绘制至少5-10个概念图来生成多种可能。如果你画了100个,那么至少有一个是好的,因为设计100个糟糕的建筑是不可能的。你画得越多,你成功的概率就越大。不要在每个上花太多时间。有时候你只需要30秒的时间就能画一些线条,这就足够表达核心思想了。如果你很难给它命名,那可能是图太原始了。试着用不同的方式再画一次,或者试着把纸旋转180度,从另一个角度想象它。
3. 气泡图
将最有希望的概念图展开成气泡图:一组不同的椭圆,每个椭圆代表不同的房间。
为组成的每个部分画一个气泡标记每个气泡画箭头强调某些联系或方向
气泡图的目标是在你的关卡中建立比例和联系。比如什么部分需要变大?什么部分需要相互连接?
不要担心细节。最重要的是理解空间的逻辑。
请看下面的气泡图示例。哪些空间与客厅相连,为什么?为什么浴室在那里?卧室在哪里?如果有人不能走楼梯,他们怎么才能住在这房子里?

芝加哥F10住宅的气泡图示例,摘自Masengarb等人的《建筑手册:理解建筑的学生指南》。
关于气泡图的建议:
前几个气泡图将会不太理想并产生新的问题。有些泡泡可能太大或太小,或者它们可能连接了错误的泡泡。也许你忘了加一些泡泡? 也可能是泡泡太多了。
一个坏的气泡图是好的。这意味着你很早就发现了设计问题,你可以绘制另一个来尝试另一个计划。绘制至少3个气泡图来想象多种排列和大小。你可以脱离原始概念。概念图的目的是帮你开始画泡泡。如果它不再对你有帮助,那就不要使用它。
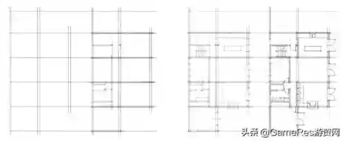
4. 平面图
在建筑学中,自上而下的布局图被称为平面图。
想象一个平面的切面,想象穿过建筑的水平切面在这个平面切割下画出结构的形状——墙段、门、窗户和重要的家具用虚线或点段线画上相关物体的平面图
在下面的图表中,注意Ching是如何使用各种线条类型、线条粗细、阴影和色调模式来区分平面图的各个部分的。Ching把墙壁变厚变暗,但用较细的线条标出楼梯或屋子的区域,用较细的线条标出旋转门的弧线。

来自Francis D. K. Ching的《建筑制图》(第6版)的各种平面图绘制技术
绘制平面图的建议:
从大的开始。使用整个页面,从大的主要形状开始,逐渐细化到较小的特征,如门和窗户。通过整个图纸进行工作,不要试图从一开始就画出100%的细节。90/90。长方形、方框和网格比单角或弯曲的墙更容易建造。一般来说,如果90%以上的角是90度,并与网格对齐,你会感谢自己的。使用2倍线厚度。使用不同的线权重来标记不同类型的墙壁和区域。笔比鼠标更实用。如果要快速绘制布局图,请使用铅笔、钢笔或画板。如果使用鼠标进行绘制,则应尽量保持布局绘制的简单,并避免微调线条或调整精确的形状——在这里,精度并不重要。我们不是建筑师。详细的建筑图纸很漂亮,但在关卡设计的这个阶段,只需要绘制出能够表达空间和玩家体验界限的最低限度的图纸。
5. 游戏玩法标记
在你绘制出更具体的房间形状和墙壁后,在平面图上做标记——标记出预期的机制、节奏和遭遇战。好的布局应该传达出玩家的体验。当标记楼层平面图时,不要忘记:
流线。用直线或一组箭头绘制或标记关键路径。如果关键路径是非线性或复杂的,那么至少要标记出玩家的起始位置和退出点。在多人游戏地图中,轻微着色或突出团队刷出区域和主要循环。区域。标记主要区域、地标和预期的设置。它的主要部分或区块是什么?对于竞争性多人游戏的地图,你可以开始考虑可能的“标注”,即玩家用来快速指代地图不同部分的简短标签。对象。标记重要的目标、npc、敌人、道具、强化物、拾取道、陷阱等,这对于理解玩家体验至关重要。但简化不重要或不在关键路径上的次要对象,以避免过多的内容扰乱绘图。一个忙碌而混乱的布局图是无效的。

Eric Kirchmer为《半条命2》中的“Nova Prospekt”绘制的等角布局图中的玩法标记

《传送门2》具有谜题的等距布局图中玩家的流线,来自Game Informer, 2010年3月
关卡布局图案例
《半条命2》,“Nova Prospekt”,Eric Kirchmer和David Sawyer设计
在单人FPS游戏《半条命2》(2004年)中,玩家必须在一个名为Nova Prospekt的废弃监狱中战斗。这是一个很长的章节,充满了许多与快速移动的小队敌人的近距离战斗,旨在充分利用玩家的“虫饵”武器,即能够命令飞行的“蚁狮”怪物去攻击敌对的士兵。
调研:灵感来源于加州旧金山的恶魔岛州立监狱类型学:地面上的竞技场两侧有狭窄的通道和监狱牢房,往往有大门遭遇战:设计不同的街区和房间,每个部分提供一个中心构思,在整个章节中为“蚁狮”交战空间增加了一个新的转折

Alcatraz(左),Nova Prospekt气泡图(右),摘自艺术书籍“半条命2:提高标准”
Nova Prospekt (上图右)是一个相对简单的布局图,标出了区域以及玩家如何通过和前进,同时它省略了每个建筑内部的单独房间和走廊。总之它是一组关卡的布局图,而不仅仅是一个关卡。而且它基本上是一个气泡图,聚焦于每个区域的进程及其连接性。
对于单个的建筑组块和遭遇战,Valve概念美术师Eric Kirchmer将关卡设计和玩法标记直接融入到概念美术草图中,这可能是团队协作设计会议的结果。这些遭遇战带有理想化的关键路径“解决方案”,即将每场战斗视为待解决的谜题。这些草图为关卡设计师David Sawyer提供了有价值的设计文件。
在所有等距布局图中,可以看到大量的玩法标记:玩家开始的位置、关键路径箭头以及大量文本标签的使用,以帮助我们想象玩家体验。

Nova Prospekt 绘制的各种遭遇战的等距布局图,摘自艺术书籍“半条命2:提高标准”
《雷神之锤》,“未命名”关卡,Andrew Yoder设计
在单人游戏《雷神之锤》关卡中,设计师Andrew Yoder重复了一种设定,即在房间中放置悬挂的笼子。在这里,Yoder反复地在平面图和模型图之间流畅地切换,有时会脱离整个房间,并使用布局草图重新审视设计。以下是他的一些笔记:

带有透视图的关卡布局草图,Andrew Yoder
我们注意到有编号,大量注释,草图中不同部分的标记,偶尔使用透视图来阐明整体结构。当关卡布局涉及高度变化时,透视图尤其有用,因为从上到下的视角很难绘制高度变化。各种草图和丰富的标记帮助Yoder传达他的设计意图,布局过程可以帮助Yoder描述和阐明设计问题。

《雷神之锤》中悬浮笼区域的模型截图,Andrew Yoder
《看门狗2》,“Automata-电视台”,luliu-Cosmin Oniscu设计
在开放世界黑客游戏《看门狗2》中,设计师luliu-Cosmin Oniscu创造了一个包含多个目标、入口和关键路径的任务。在他的博文“Watch Dogs 2 - Automata - a level design retrospective”中,他引用了带有大量玩法标记和最小化建筑的布局图:

《看门狗2》的“Automata”中WKZ站的布局,由设计师luliu-Cosmin Oniscu绘制
以下是设计师的建议和意图:
在这个特定的场景中,技巧在于玩家可以通过激光并触发警报,但他也可以:
当守卫巡逻时关闭激光,然后进入红色区域并无声地打倒Al。使用安装在墙上的摄像机,从一个摄像机的角度移动到另一个摄像机的角度。在游戏的这一点上,这是一种已经建立起来的侦察内部地点的方法。使用无人机探索走廊并使守卫瘫痪。
后面的走廊也有一些战略位置上的接线盒,玩家可以切断这些接线盒,从而使两个守卫同时失去能力。
请注意,关卡设计师的绘图(如上图所示)比实际的游戏内部执行(如下图所示)简单得多。建筑细节,家具,甚至一些游戏玩法元素,如中立的npc和壁挂式摄像机,都没有出现在布局图中。这些都与计划通过打败守卫npc而绕过守备区的核心体验目标无关。
这里教会我们:不要让没必要的设计功能扰乱你的布局图。

《看门狗2》“Automata”中WKZ站大厅的玩家视角,Luliu-Cosmin Oniscu
《军团要塞·经典》(Valve),“Warpath”,Robin Walker等设计
在基于职业的多人射击游戏《军团要塞·经典》(1999)中,“Warpath”是Robin Walker和Valve的团队合作设计的控制点地图。《军团要塞·经典》的CP游戏模式与《军团要塞2》或《守望先锋》中的现代CP模式类似,即两支队伍将在中央通道上争夺所有控制点。
流程:一个中央通道和侧路,5个控制点和动态的刷新点平衡:对称地图,所有9个职业必须是可用的,攻击/防御在每个CP都可实现类型学:串珠项链,一条长长的走廊,为每个CP点缀着竞技场。

将最初的平面图与最终的关卡布局进行比较,《军团要塞经典》的“Warpath”
在上图中,注意编号的控制点和标记。每个控制点区域就像一个迷你竞技场,带有特定的地标:狙击点、隧道、石拱、兵营等。从最开始就进行命名和主题化地图区域,标签还会突出地图中体验目标的最重要部分。
同样要注意的是,手绘图只显示了地图的一半,最后的关卡在中央桥上进行了镜像对称。因为他们已经决定地图布局应该是对称的,所以没有必要手绘整个地图。因此,设计的约束条件会影响绘制布局平面的方式。

从蓝队的狙击点架向南部中央桥竞技场;《军团要塞经典》中的“Warpath”
批判思考
绘制布局平面可以帮助你更好地计划项目并抓住核心问题。当与他人合作时,它也帮助每个人协调他们的工作,并且相互理解。
但是布局图并不是一个关卡,没有人能够测试草图。这只是个计划,而计划总是会变的。
也许一个完美的布局图看似能够创造出完美的关卡,而不浪费任何工作,但这却从未发生过。相反地,你不应该仅仅停留在计划阶段,首先“开始绘制地图”——然后构建地图并测试它,接着你就会发现它是否有效。搭建实际关卡的过程将有助于验证设计,而不能仅是花太多时间在纸上设计虚构的关卡。
回顾小结
传统的设计关卡布局过程开始于设计目标,并以布局平面图结束。这张布局图只是你开始游戏设计的最初计划,你应该期待最终关卡会出现明显的差异。本文中的重要过程总结如下:
制定一个基本计划,定义理想的体验目标和节奏。绘制概念图,包括简单的图示和核心形状。用气泡图布置空间,强调整体的比例和关系。画出平面图,自上而下的图纸中具有墙壁和地板。
从大的简单形状开始,忽略细节,使用多线型和阴影区域。对于多层的房间,绘制等距视图,注意楼层的平面。对于重要或复杂的房间,绘制透视图并加以标记。
加上玩家流线和玩法注释,帮助他人想象这种游戏体验,特别是当你进行团队合作时,标注清晰的名称和区域标签很重要。
PS:我会定期学习,梳理,输出 【游戏/游戏设计/游戏建筑】 相关的思考或笔记,欢迎感兴趣的朋友,关注我的知乎。如需转载,请私信。
参考来源:
https://book.leveldesignbook.com/process/layout
